A vendre
639000€
Reference :
4590
Personne de contact : James Boudin – 0478 68 63 55 “Noproblimmo by James”
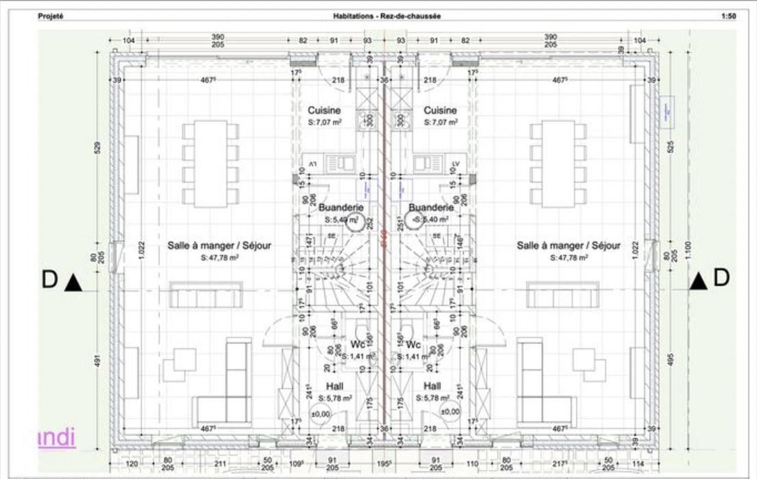
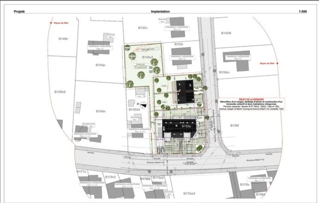
projet de 2 nouvelles maisons 3 façades “basse énergie” à vendre à Limelette.
Ces constructions de grande qualité, châssis alu, peu énergivores ( pompe à chaleur réversible, chauffage sol, ventilation conforme seront situées rue Joseph-Marie Detournay située à l’entrée d’un lotissement à Limelette. Idéalement situées, les habitations bénéficient chacune d’une terrasse de 20 m2 et d’un jardin de +/- 250 m2. Chaque maison dispose de 3 niveaux comprenant 4 chambres dont une avec un dressing, 3 salles de bain, une cuisine américaine équipée et une pièce polyvalente (bureau, salle de jeux….)
Chaque maisons est proposé totalement fini y compris la cuisine équipée et est personnalisable quant aux choix des finitions.
maison 1: 649 000€
maison 2: 639 000€
éléments techniques: PEB A++ / électricité conforme / panneaux PV + batterie / citerne d’eau de pluie (7500l)
Frais:
– dts enregistrement pour la quote-part terrain;
– 21% pour la partie construction.
– frais d’agence de 1,815% TVAC du prix de vente du bien
Les futurs acquéreurs auront le choix des finitions intérieures sous les conseils avisés de l’architecte.
Livraison prévue septembre 2027.
Prix 639.000 € hors frais. Vente soumise aux dts d’enregistrement et TVA. Contact 0472/86.73.38.
EPC Label : 
Owning a home is a keystone of wealth… both financial affluence and emotional security.
Suze Orman